Manufactured

Berkshire 16603C

Built by: Cavco Rocky Mount

3D Home Tour

No 3d Tour Available

About this Home

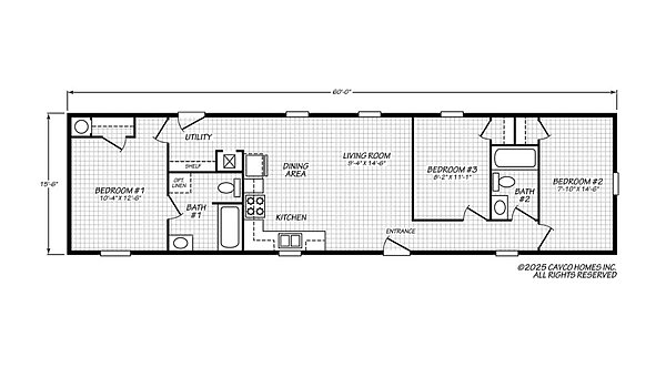
The Berkshire / 16603C built by Cavco Rocky Mount is a smart and inviting home designed to make the most of 930 square feet. This 3 bedroom, 2 bathroom layout offers a cozy living room that flows into the dining area and kitchen, creating an easy space for daily life. The primary bedroom sits on one end with a nearby full bath, while two additional bedrooms and a second bath are on the opposite side for added privacy. A handy utility area adds extra function. The 16603C is a bright, efficient home that fits your lifestyle with comfort and ease.

Share this home

Details

  • 3 Bedrooms
  • 2.00 Bathrooms
  • 930 Square Feet
  • 16’0″ x 60’0″

PHotos

Tours & Videos

Specifications

Exterior Wall On Center: 16 inches on Center
Exterior Wall Studs: 2x4 Exterior Wall Studs
Floor Decking: OSB Tongue and groove
Floor Joists: 2x6 Floor Joists
Interior Wall On Center: 16 inches on Center
Interior Wall Studs: 2x4
Roof Load: #20
Side Wall Height: 7' Sidewall Height
Insulation (Floors): R-11
Insulation (Walls): R-11
Insulation (Ceiling): R-21
Dormer: Dormer Std.
Front Door: Residential Front Door
Roof Pitch: 3/12
Shingles: Composition
Siding: Vinyl Siding with OSB Backing
Window Type: Storm WIndows
Ceiling Texture: Seaspray Paneled Ceiling
Window Treatment: Wood Cornice Window Accents
Electrical Service: 200 Amp
Shut Off Valves Throughout: Yes
Water Heater: 30 Gallon
Bathroom Flooring: Linloeum
Bathroom Countertops: Formica
Bathroom Custom Options: Glamor Bath
Kitchen Refrigerator: 16 Cubic Frost Free
Kitchen Range Type: Deluxe Range
Kitchen Range Hood: Standard
Kitchen Flooring: Vinyl
Kitchen Dishwasher: Standard
Kitchen Custom Options: Crown Molding on Top of Cabinets
Kitchen Countertops: Formica
Kitchen Cabinetry: Raised Panel Cabinet Doors with Base Center Shelves
Kitchen Backsplash: Ceramic Tile Backsplash
¿Hablas español?